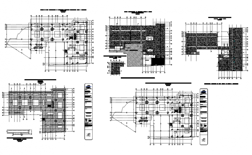
Hotel building structure layout autocad file
Description
Hotel building structure layout autocad file, column detail, hidden line detail, dimension detail, terrace detail, floor level detail, specification detail, hatching detail, numbering detail, cut out detail, reinforcement in tension and compression zone detail, effective coverd etail, hook and bends detail, nut bolt required for joint and connection detail, floor detail, etc.
Uploaded by:
Eiz
Luna

